Mieszkanie jakich mało w odnowionej czystej kamienicy 114 m² w CENTRUM
- Dolnośląskie,
- Wrocław,
- ul. gen. Józefa Haukego-Bosaka, Przedmieście Oławskie, Krzyki
- Mieszkanie
- Sprzedaż
- Wtórny
- Aktualne

Cena
1499000 PLN

Powierzchnia
114 m2

Liczba pokoi
4

Rok budowy
1900

Piętro
parter/4

Udogodnienia
dwupoziomowe, oddzielna kuchnia
Najważniejsze informacje
Na sprzedaż jedno z najbardziej klimatycznych mieszkań w centrum Wrocławia. Piękne kamieniczne wnętrze zachwyca przestrzenią, oryginalną cegłą, wysokimi sufitami, gipsową sztukaterią i ogromnym potencjałem aranżacyjnym.
Na sprzedaż wyjątkowe, stylowo wykończone 4-pokojowe mieszkanie o powierzchni 114 m², położone na zrewitalizowanym osiedlu Przedmieście Oławskie we Wrocławiu. Lokal znajduje się na 1. kondygnacji (wysoki parter) eleganckiej kamienicy położonej przy cichej i spokojnej ulicy Haukego Bosaka.
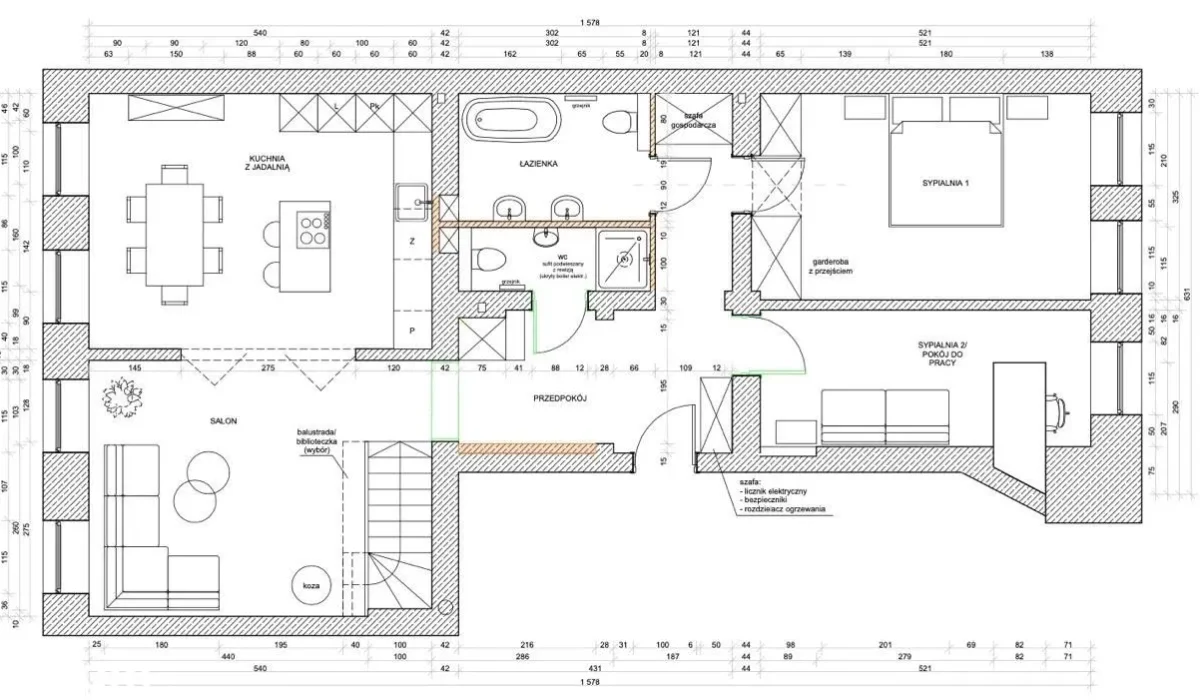
UKŁAD
- Salon – to przestronny i jasny pokój dzienny o powierzchni ponad 20 m², całkowicie wykończony, bardzo klimatyczny, z odsłoniętą cegłą na ścianie, dużymi oknami doświetlającymi wnętrze i zdobnymi detalami w postaci gzymsów i sztukaterii.
- Jadalnia z aneksem kuchennym – całkowicie urządzona, o powierzchni ponad 20 m². Nowoczesny aneks kuchenny z funkcjonalną wyspą został wyposażony w wysokiej jakości sprzęt AGD (piekarnik, zmywarka, płyta indukcyjna, okap, lodówka). Zabudowa meblowa na wymiar z fornirowanymi frontami i trwałym laminowanym blatem.
- Sypialnia I – Komfortowa sypialnia o powierzchni 15 m², z dużymi oknami i pojemną szafą w zabudowie.
- Sypialnia II / Gabinet – Nieco mniejszy pokój o powierzchni 11 m², z dużym oknem i piękną ceglaną ścianą.
- Pokój na poziomie -1 – Dodatkowy duży pokój o powierzchni ponad 20 m², mogący pełnić funkcję pokoju telewizyjnego, pokoju do pracy, lub pokoju gościnnego. Do pomieszczenia prowadzą solidne drewniane schody bezpośrednio z salonu. W pokoju odsłonięto piękny łukowy strop kleina z czerwonej cegły.
— Pokoje na planie regularnego prostokąta są bardzo ustawne i doskonale doświetlone. Układ pokoi umożliwia dowolną aranżację funkcji mieszkania. —
- Łazienka I – Stylowa całkowicie nowa łazienka o powierzchni 5 m², urządzona w optymalny sposób – wyposażona w stylową wolnostojącą wannę, dwie umywalki z szafką na kosmetyki, WC oraz lustra. Wyjątkowy charakter łazienki podkreślają miedziane baterie i dopasowane dodatki.
- Łazienka II – Całkowicie wyposażona mniejsza łazienka o powierzchni 3,3 m² – z kabiną prysznicową, umywalką z lustrem, WC i zabudowaną szafką.
- Przedpokój – Przestronny i wysoki korytarz z zabudowanymi szafami na wymiar zlicowanymi ze ścianą.
STANDARD
Mieszkanie po gruntownym remoncie, wykończone w wysokim standardzie: drewniane podłogi i parapety z naturalnej deski dębowej, w przedpokoju i kuchni na podłodze zastosowano mikrocement, eleganckie sztukaterie na ścianach i suficie, odnowione drewniane drzwi, nowe szczelne okna PVC, oryginalna cegła na ścianie wszystkich pokojów. W pokojach oraz w łazience znajdują się zabudowane pod wymiar pojemne szafy. Kuchnia wyposażona we wszystkie niezbędne urządzenia AGD – zmywarkę, lodówkę, płytę indukcyjną, piekarnik i okap. Sprzęty renomowanych producentów, nowe. Zabudowa kuchenna wykonana z bardzo dobrej jakości szafek o fornirowanych frontach, z blatem z jasnego laminatu imitującego marmur, odpornego na wszelkie uderzenia, zarysowania oraz wilgoć.
Grube ściany z cegły zapewniają doskonałe wytłumienie. Mieszkanie, pomimo położenia w samym centrum jest bardzo ciche.
Mieszkanie przeszło gruntowny remont w 2019 roku. Nowa instalacja elektryczna, sanitarna i grzewcza (ogrzewanie podłogowe).
LOKALIZACJA I OKOLICA
Mieszkanie zlokalizowane w sercu miasta, w spokojnej okolicy z dostępem do wszelkich udogodnień. Odnowiona kamienica z 1890 roku mieści się bezpośrednio przy ulicy Haukego Bosaka, 5 minut spacerem od Galerii Dominikańskiej, 10 minut od płyty Rynku, Placu Solnego, Uniwersytetu Wrocławskiego. W pobliżu znajdują się liczne sklepy, restauracje, lokale usługowe, szkoły oraz przystanki komunikacji miejskiej.
Bliskość Odry oraz licznych terenów zielonych, parków i skwerów zapewnia doskonałe warunki do rekreacji.
Miejsca parkingowe dostępne w podwórku za budynkiem oraz na sąsiadujących ulicach (nie ma problemu z parkowaniem).
Dzielnica stale się rozwija. Przy ulicy przeważa zwarta zabudowa kamieniczna, ale znajdują się także budynki oświaty i nowy budynek biurowy. Powstaje tu wiele nowych inwestycji skupionych m.in. na infrastrukturze, zieleni, sporcie, edukacji. Zwiększa to komfort życia mieszkańców i podnosi wartość samej nieruchomości.
WYJĄTKOWE CECHY
- Przestrzenne i klimatyczne – mieszkanie zostało całkowicie odnowione, z zachowaniem wyjątkowego klimatu wnętrza historycznej kamienicy. Czeka na wyjątkową aranżację i lokatorów kochających klimat retro.
- Wysokie sufity – spotykane prawie wyłącznie w kamienicach o imponującej wysokości ponad 3 metrów nadają wnętrzu niepowtarzalny charakter i przestrzeń, która umożliwia ciekawsze rozwiązania wnętrzarskie.
- Nowoczesne instalacje – dzięki kompleksowym wymianom pionów i elektryki, nowi właściciele mogą cieszyć się spokojem i bezpieczeństwem, nie martwiąc się o ewentualne remonty.
- Komfortowe ogrzewanie podłogowe
- Wyjątkowe światło – duże okna zapewniające mnóstwo naturalnego światła sprawiają, że przebywanie w tym mieszkaniu pozytywnie wpływa na nasze samopoczucie i pobudza kreatywność.
Serdecznie zapraszam do kontaktu i umówienia się na prezentację tego wyjątkowego mieszkania. To idealna propozycja dla osób ceniących sobie komfort, elegancję i doskonałą lokalizację w centrum miasta.
Zachęcam do obejrzenia mieszkania NA ŻYWO – to jedyna okazja, aby poczuć jego wyjątkową atmosferę!
Aleksandra Błażków
GLUBKA&CO PREMIUM REAL ESTATE
Dążymy do tego, aby informacje o proponowanych przez nas ofertach były jak najbardziej dokładne i aktualne. Warto jednak mieć na uwadze fakt, iż opis oferty zawarty na stronie internetowej sporządzany jest na podstawie oględzin nieruchomości oraz informacji uzyskanych od właściciela, może podlegać aktualizacji i nie stanowi oferty określonej w art. 66 i następnych K.C.






















